Loading...
Loading Properties
Please wait while we load the properties
Loading...
Please wait while we load the properties

Aspe, Costa Blanca Zuid
3
Slaapk.
3
Badk.
188
m²
1
Verd.

Neem contact met ons op voor meer informatie over deze woning.

Ron
ron@spainora.com
+31 97010289357
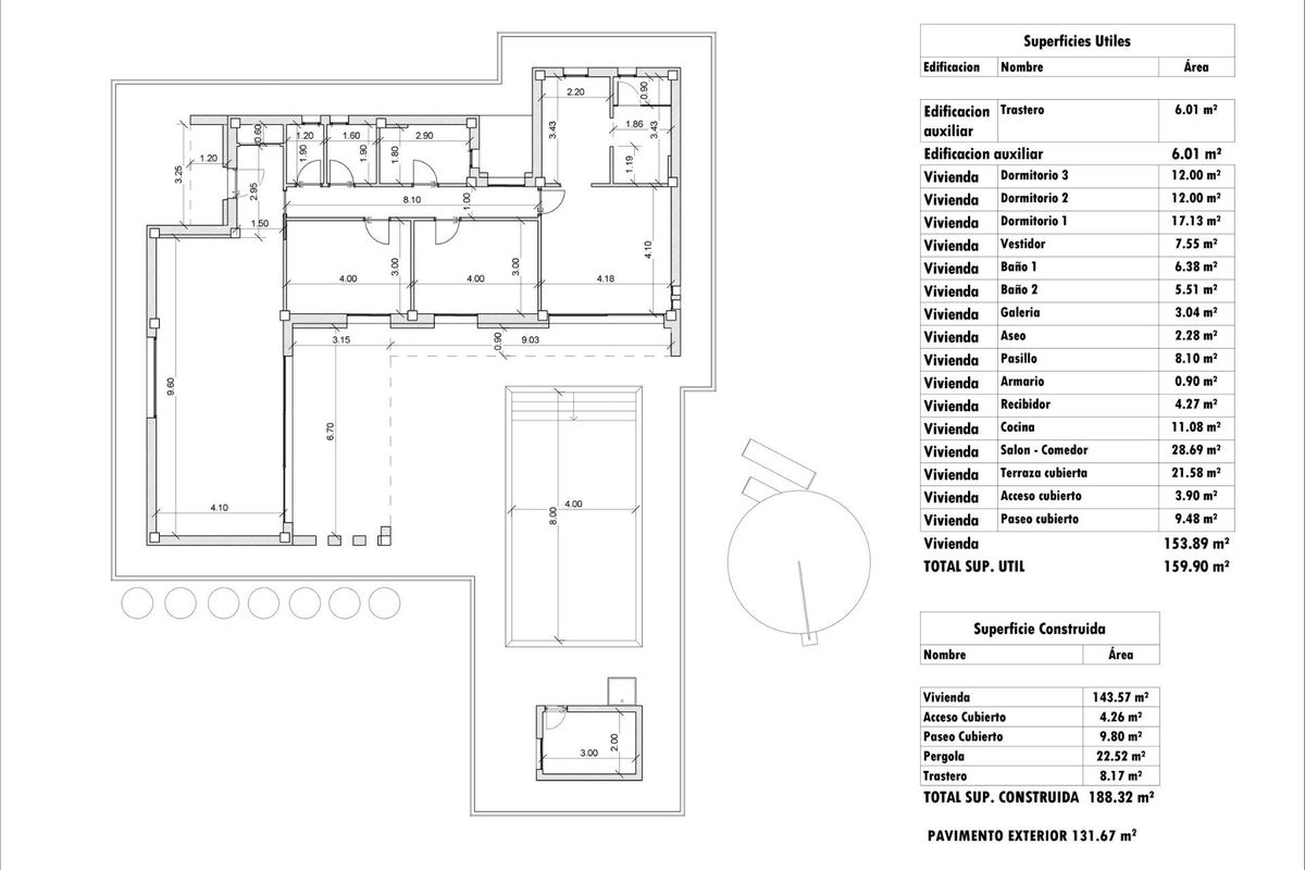
Ontdek deze prachtige nieuwbouw 3-slaapkamer villa in de gemeente Aspe. Met een royale perceelgrootte van 13.172 m² biedt deze villa privacy en ruimte, ideaal voor wie op zoek is naar een rustige omgeving. Geniet van het comfort van een privézwembad en een ruime veranda, perfect voor ontspanning en entertainment.
Gelegen in Aspe, een typisch Spaans dorp met alle noodzakelijke voorzieningen voor het dagelijks leven. Omringd door bergen en natuurgebieden, biedt Aspe de perfecte setting voor wandel- en fietsroutes. De villa ligt op slechts 25 km van het strand, 9 km van Elche en ongeveer 20 km van de luchthaven van Alicante, waardoor het een uitstekende locatie is voor zowel permanente bewoning als vakantiewoning.
Met een vraagprijs van €441.500 biedt deze villa een uitstekende investering in een rustige en schilderachtige omgeving. De villa wordt gebouwd op een rustiek perceel van meer dan 10.000 m², waarvan ongeveer 2.500 m² omheind zal worden. Het project wordt in eigen beheer uitgevoerd en is binnen ongeveer 12 maanden na verlening van de vergunning gereed. Dit is een unieke kans om te investeren in een hoogwaardige woning in een van de meest gewilde regio's van de Costa Blanca.
Perceel
13172m²
Parkeerplaatsen
1
Oplevering
2026 Q4
Neem contact met ons op voor meer informatie over deze woning.

Ron
ron@spainora.com
+31 97010289357
Dichtstbijzijnde Luchthaven
Luchthaven Alicante-Elche (ALC)
20.3 km
Dichtstbijzijnde Luchthaven
Internationale Luchthaven Regio Murcia (RMU)
65.1 km
Dichtstbijzijnde Ziekenhuis (24u)
Algemeen Universitair Ziekenhuis Elche
9.6 km
Dichtstbijzijnde Golfbaan
Font del Llop Golf Resort
7.5 km
Uw vertrouwde partner in Spaans kust vastgoed