Loading...
Loading Properties
Please wait while we load the properties
Loading...
Please wait while we load the properties

Aspe, Costa Blanca Zuid
4
Slaapk.
3
Badk.
223
m²
2
Verd.

Neem contact met ons op voor meer informatie over deze woning.

Ron
ron@spainora.com
+31 97010289357
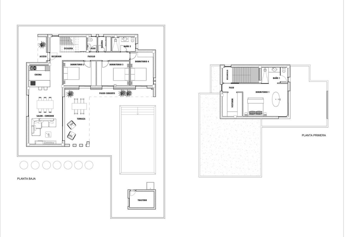
Ontdek deze prachtige nieuwbouw 4-slaapkamer villa in de gemeente Aspe. Met een royale woonoppervlakte van 223 m² en een perceel van maar liefst 13.172 m², biedt deze villa alle ruimte en comfort die u zich maar kunt wensen. Geniet van uw eigen privézwembad en een ruime veranda, ideaal voor ontspanning en entertainment.
De villa is gelegen in Aspe, een typisch Spaans dorp dat alle voorzieningen biedt voor het dagelijks leven. Omgeven door bergen en verschillende natuurgebieden, is het de perfecte locatie voor natuurliefhebbers die willen wandelen of mountainbiken. Aspe ligt op slechts 25 km van het strand, 9 km van Elche en ongeveer 20 km van de luchthaven van Alicante. Deze locatie biedt de ideale balans tussen rust en bereikbaarheid.
Met een vraagprijs van €552.500 biedt deze villa een uitstekende investering voor wie op zoek is naar een luxe woning in een rustige omgeving. Het project wordt in eigen beheer uitgevoerd en zal binnen ongeveer 12 maanden na vergunningverlening worden opgeleverd. De villa's worden gebouwd op rustieke percelen van meer dan 10.000 m², waarvan een deel omheind is, wat zorgt voor privacy en veiligheid. Dit is de ideale kans voor wie wil investeren in een ruime woning met moderne voorzieningen, weg van de toeristische drukte maar toch dicht bij alle benodigde faciliteiten.
Perceel
13172m²
Parkeerplaatsen
1
Oplevering
2026 Q4
Neem contact met ons op voor meer informatie over deze woning.

Ron
ron@spainora.com
+31 97010289357
Dichtstbijzijnde Luchthaven
Luchthaven Alicante-Elche (ALC)
20.3 km
Dichtstbijzijnde Luchthaven
Internationale Luchthaven Regio Murcia (RMU)
65.1 km
Dichtstbijzijnde Ziekenhuis (24u)
Algemeen Universitair Ziekenhuis Elche
9.6 km
Dichtstbijzijnde Golfbaan
Font del Llop Golf Resort
7.5 km
Uw vertrouwde partner in Spaans kust vastgoed