Loading...
Loading Properties
Please wait while we load the properties
Loading...
Please wait while we load the properties

Los Alcazares, Costa Cálida
3
Slaapk.
2
Badk.
108
m²
1
Verd.

Neem contact met ons op voor meer informatie over deze woning.

Ron
ron@spainora.com
+31 97010289357
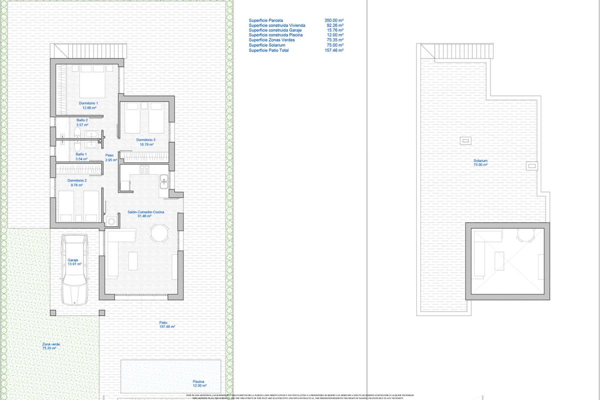
Ontdek deze prachtige nieuwbouw villa in Los Alcazares, gelegen op een royaal perceel van 350 m². Deze vrijstaande villa biedt een moderne levensstijl met 3 slaapkamers en 2 badkamers, ideaal voor gezinnen die op zoek zijn naar comfort en stijl. De open keuken en woonruimte zijn perfect voor entertainment en familiebijeenkomsten, terwijl de grote schuifdeuren naar het terras een naadloze overgang naar buiten bieden.
Deze villa's zijn ideaal gelegen op slechts 1 km van het strand en de stad Los Alcazares. Dit gebied staat bekend om zijn prachtige stranden en biedt een scala aan watersportmogelijkheden. Bovendien zijn er verschillende golfbanen in de omgeving, perfect voor golfliefhebbers. De stad Cartagena ligt op minder dan 15 minuten rijden, en de luchthaven van Murcia Corvera is in slechts 30 minuten te bereiken, wat zorgt voor uitstekende verbindingen.
Met een vraagprijs van €361.500 biedt deze villa een uitstekende investering voor diegenen die op zoek zijn naar een luxe woning in een gewilde regio. De mogelijkheid om een privé zwembad toe te voegen, verhoogt de aantrekkingskracht van deze woning nog verder. Gelegen in een gebied met sterke toeristische aantrekkingskracht, biedt deze villa ook potentieel voor vakantieverhuur, wat bijdraagt aan de waarde van uw investering.
Perceel
350m²
Parkeerplaatsen
1
Neem contact met ons op voor meer informatie over deze woning.

Ron
ron@spainora.com
+31 97010289357
Dichtstbijzijnde Strand
Strand
1.0 km
Dichtstbijzijnde Luchthaven
Internationale Luchthaven Regio Murcia (RMU)
24.2 km
Dichtstbijzijnde Luchthaven
Luchthaven Alicante-Elche (ALC)
66.3 km
Dichtstbijzijnde Ziekenhuis (24u)
Ziekenhuis Los Arcos del Mar Menor
4.6 km
Dichtstbijzijnde Golfbaan
Serena Golf
1.1 km
Uw vertrouwde partner in Spaans kust vastgoed